新必产业园

1.8元/m²/天
所属楼盘: 新必产业园
地址: [上海 ] - 联川路213号  
建筑面积: 159m²  
装修程度: 精装
物业费: 10元/月
免费咨询021-51693310
新必产业园概况
    新必产业园 物业出租招商电话:021-51693310
    新必产业园 地址:联川路213号
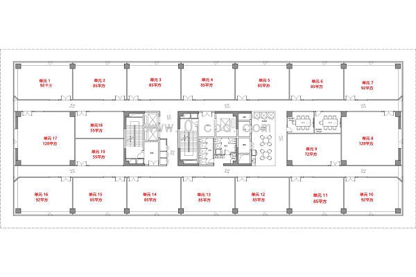
    新必产业园 面积:55-72-85-92-128m²
    新必产业园 租金:1.8-2.1元
    新必产业园 物业费:10元
    新必产业园 付款方式:押二付三
    新必产业园 租期:2年起
    新必产业园 交付标准:地毯,大金空调,照明,入户指纹锁
    新必产业园 每层配有2间公共会议室,公共茶水区

    新必产业园是位于上海市闵行区浦江镇的一个高科技产业园区,主要面向科技创新、高端制造和现代服务业企业,提供的营商环境。园区地理位置优越,交通便利,新必产业园紧邻众多高校和科研机构,形成了浓厚的创新氛围和人才集聚效应。新必产业园具体介绍如下:项目概况,地址与基本信息:新必产业园位于上海市闵行区联川路213号,园区总占地面积为39亩(约25942.8平方米),总建筑面积达到53803平方米。开发商与物业公司:该项目由上海鹏晨联合实业有限公司开发,新必产业园物业管理由上海金晨物业管理有限公司负责,物业费为10元/月/平方米。
    竣工时间与楼层分布:新必产业园项目于2022年竣工,新必产业园分为地上建筑五栋,共计39573平方米,新必产业园地下建筑面积为14230平方米。
    新必产业园建筑设计与设施,新必产业园建筑特点:各建筑楼层高从1楼5.5米到4.5米不等,到3-9楼为3.9米,而4#和5#楼的楼层高度为4.5米和部分7.9米。新必产业园园区主入口位于联川路上,次入口位于万泰路,属于开放式园区,无围栏,但有绿化带进行隔离。配套设施:新必产业园园区内实行人车分流,计划车位415辆,地上57个,地库358个。配备VRV分体空调,电梯品牌为三菱。产业定位与入驻企业主导产业:新必产业园园区致力于科技创新、高端制造和现代服务业,为企业提供一 流的营商环境。代表性入驻企业:目前新必产业园园区正在招商,欢迎各类科技创新、高端制造和现代服务业企业入驻。
新必产业园楼盘介绍
  • 新必产业园

    新必产业园

    新必产业园物业出租招商电话:021-51693310新必产业园楼盘地址:上海市闵行区联川路213号新必产业园园区面积:1#2#标准层1800㎡

免费咨询:

021-5169 3310

热门商业资讯

为您推荐

办公选址平台,专业靠谱!

-

友情链接: 上海共享办公室出租 上海写字楼出租 上海创意园出租 上海创意园区

客服服务:(工作日 早8:00-晚21:00)

021-5169 3310

?>